專業需求與人本建築的契合
採舒活環境訴求,建築體以互動廣場為中心,建構出專業且創新的工作場域。
建築設計注重室內採光,引進大量綠建築思維,在滿足專業需求的基礎上進行富有人文關懷的空
間規劃,提供創意人才絶佳的工作環境。基地內還規劃相關休閒設施,包括健身房、數位遊戲室
等。除了多元的娛樂設施,針對創意產業特性所設置的商業互動區,將作為消費端的展演媒介,
讓研發與業務推廣結合,創意設計商品能與消費者實際互動體驗,達成商務推廣的目的,從而大
幅加值經濟效益。
除園區工作者能享受上述規劃外,商業投資者也能實質獲利,利於產業經濟發展。
打造「綠與智能」的園區
「綠建築」與「智能建築」於本園區相輔相成,完善規劃
配合數位化、網路化之時代潮流,
智慧建築促進「高資訊科技化」與「人性化」的空間與環境,
亦提高生產力與經濟效益。
除此之外,健康與節能的智慧建築,
同為現代建築科技的重要發展方向。
藉由具擴充性與整合性之智慧建築使用管理功能,
使綠建築之各項系統技術能發揮其最大的效益,
創造安全、健康、便利、舒適與節能環保的人性化居住空間,
也可以說建築物智慧化是達成綠建築永續發展。
綠概念量體
- 不僅從整體環境的綠植栽、減少日照的格柵、環保建材:採⽤用合乎標準之綠建材,由內到外貫徹理念,以取得綠建築標章為目標,打造環保人性的有機園區。
節能管理
- 以「節能效益」與「能源管理」等面向,提升建築物設備系統之節能
效益,各類建築物用電之空調、照明、動力設備採用高效率設備與能
源監控管理功能。
自動化智慧控制系統:
透過自動化智慧控制系統,提⾼整體管理的效率與綜合服務的機能,降低建築物的營運成本,並發揮在建築物內發⽣突發事件之控制與處理能⼒:- 停車場智慧感應系統
- 安全保全系統、門禁管理控制、數位影像系統
- 空調監控系統、電力監控系統、照明監控系統
- 消防安全系統、進排風系統



出入口與區域互動
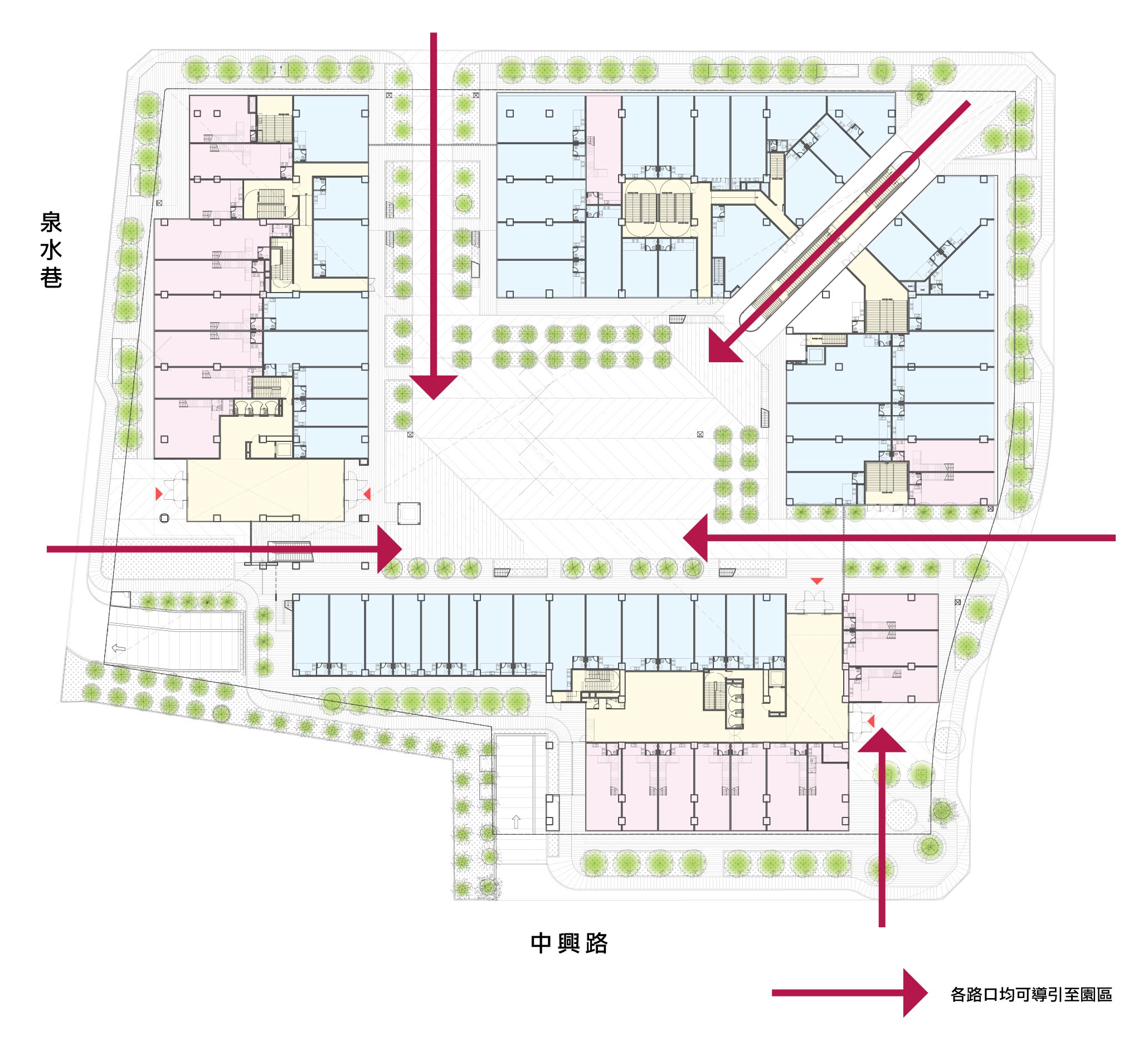
基地臨路處,均留設出入口廣場作為人行主要進入基地之動線,廣場尺度均符合園區規範。
①都計公園及中興路交角處,配合樹種保留,創造第一個街角都市廣場,亦作為園區入口意象。
②東湖公園街角之街角都市廣場,可與東湖公園聯繫並延伸至校園,可強化於公園與鄰里間之聯繫。
③C坵塊之街角都市廣場,可預留一街角空間未來與C坵塊延伸結合,園區整體性強化,並可容納活動於此及創造B/C坵塊間入口意象。
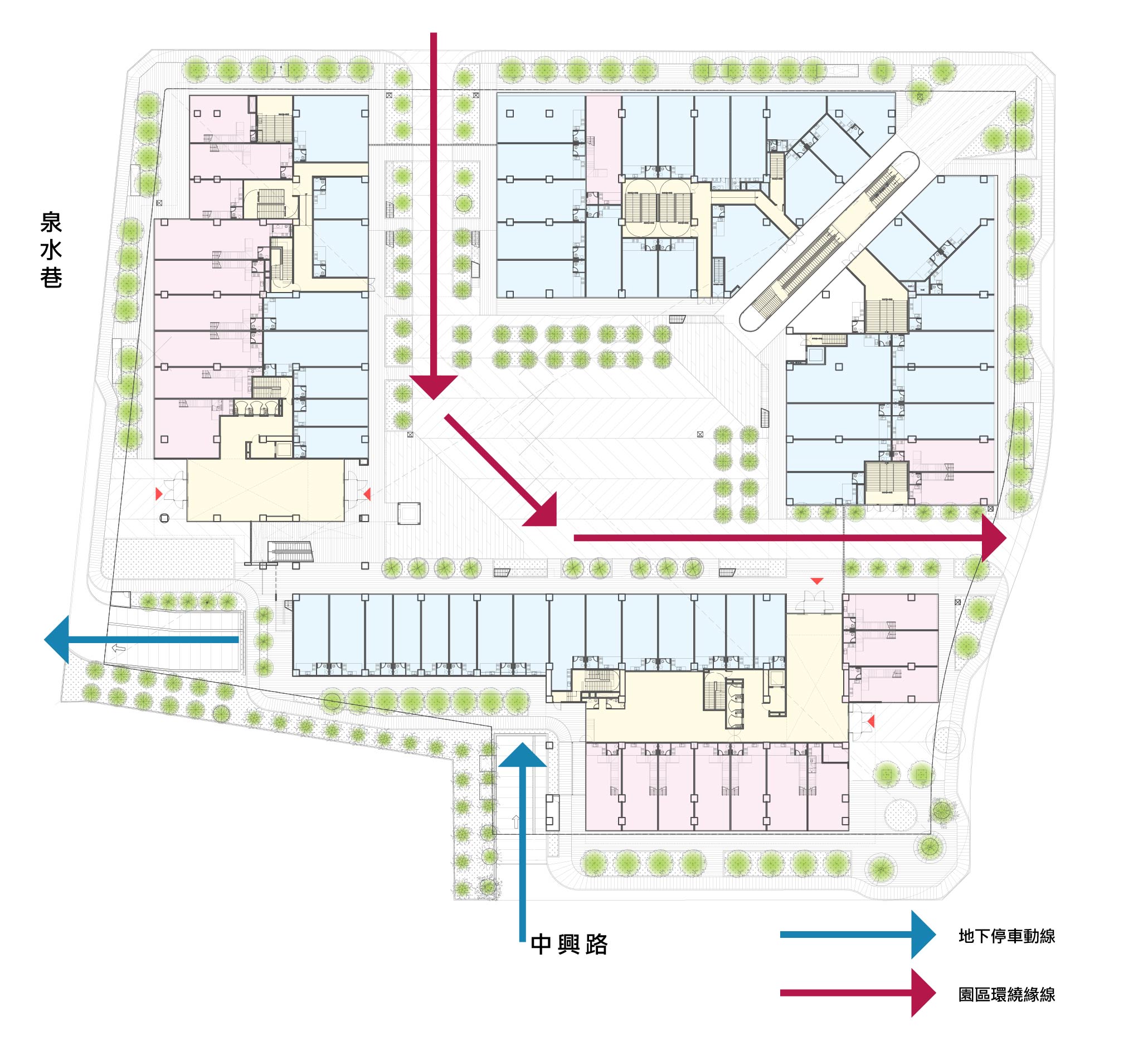
車行動線
地下停車入口設置於中興路,出口設計於泉水巷,出車量可透過泉水巷得以緩衝。
一般車輛經由管控進入中央主要廣場與塔樓門廳連接。
人行動線
配合開放空間/綠帶,提供人行無阻礙之動線。
方便進入園區,同時與公園/鄰里聯繫。






















